公式ホーム > 物件トップ > 土地 > 富士見市 > 富士見市大字上南畑B-7号地

富士見市大字上南畑B-7号地

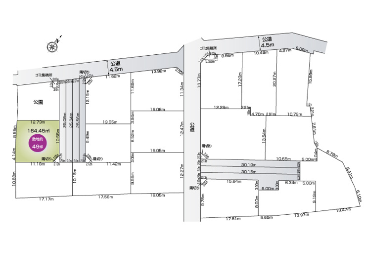
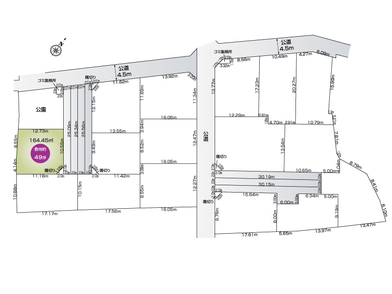
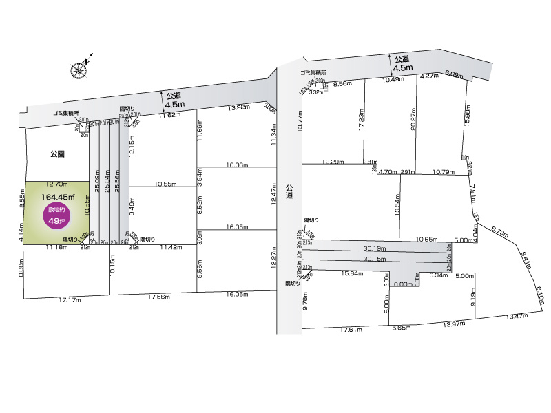
B-7 区画図
現地写真 2026.3.2
現地写真 2026.3.2
現地写真 2026.3.2
現地写真 2026.3.2
現地写真 2026.3.2
現地写真 2026.3.2
現地写真 2026.3.2
現地写真 2026.3.2
現地写真 2026.3.2

間取りと建物配置は
快適な暮らしの重要ポイントです。

  • B-7 区画図

    B-7 区画図

  • 現地写真 2026.3.2

    現地写真 2026.3.2

物件の写真

周辺環境

この物件の⽣活環境をチェック

ご家族様の⽣活シーンにあてはめて、新しい暮らしを想像してみてください

  • みずほ台駅の画像

    みずほ台駅
    - 約3,920m

  • 富士見市立南畑小学校の画像

    富士見市立南畑小学校
    - 約920m

  • 富士見市立東中学校の画像

    富士見市立東中学校
    - 約920m

  • ららぽーと富士見の画像

    ららぽーと富士見
    - 約1,600m

  • イムス富士見総合病院の画像

    イムス富士見総合病院
    - 約1,680m

  • ヤオコー ららぽーと富士見店(埼玉県)の画像

    ヤオコー ららぽーと富士見店(埼玉県)
    - 約1,600m

  • セブンイレブン 富士見南畑店の画像

    セブンイレブン 富士見南畑店
    - 約1,000m

  • ドラッグエース 富士見諏訪店の画像

    ドラッグエース 富士見諏訪店
    - 約2,270m

  • ビッグ・エー富士見鶴馬店の画像

    ビッグ・エー富士見鶴馬店
    - 約2,490m

  • ヤオコー 富士見羽沢店の画像

    ヤオコー 富士見羽沢店
    - 約2,280m

  • ふじみ野市第二運動公園の画像

    ふじみ野市第二運動公園
    - 約940m

近くのお店・施設

みずほ台駅 約3,920m/49分

富士見市立南畑小学校 約920m/12分

富士見市立東中学校 約920m/12分

ららぽーと富士見 約1,600m/20分

イムス富士見総合病院 約1,680m/21分

ヤオコー ららぽーと富士見店(埼玉県) 約1,600m/20分

セブンイレブン 富士見南畑店 約1,000m/13分

ドラッグエース 富士見諏訪店 約2,270m/29分

ビッグ・エー富士見鶴馬店 約2,490m/32分

ヤオコー 富士見羽沢店 約2,280m/29分

ふじみ野市第二運動公園 約940m/12分

物件概要

所在地 埼玉県富士見市大字上南畑
交通
  • 東武東上線「鶴瀬」駅 徒歩38分
  • 東武東上線「ふじみ野」駅 徒歩44分
  • 東武東上線「みずほ台」駅 徒歩49分
販売価格 1,880万円
総区画数 1区画 販売区画数 1区画
物件種別 売地 取引態様 売主
用途地域 無指定 都市計画 市街化調整区域
地目 畑 / 宅地 建築条件
土地権利 所有権 土地面積(坪数) 164.45㎡(49.74坪)
接道状況 一方(西 4.5m 間口 2.0m)
建蔽率 60% 容積率 200%
開発面積 3663.99㎡ 造成工事完了年月 2026年06月
開発許可番号 第0700440号 現況 更地
地役権 通行地役権 49.98㎡
路地状敷地 49.98㎡
セットバック 物件番号 102132708
管理コード 2522707 取引条件の有効期限 2026年04月25日
情報更新日 2026年04月11日 次回更新予定日 2026年04月25日
その他の法令上の制限 景観法/農地法届出要/宅地造成及び特定盛土等規制法/●ゴミ集積所:4.25㎡(持分:1/8) ●敷地面積とは別に隅切2.25㎡(持分:1/2)あり。
設備
  • 都市ガス
  • 公営水道
  • 公共下水
備考 ◆ららぽーと富士見まで徒歩20分圏内!
◇南畑小学校・東中学校まで徒歩12分と通学も安心の距離です♪
◆お子様からお年寄りまで徒歩12分の公園でのんびり過ごしませんか!
◇生活利便施設が多く点在し毎日のお買い物も休日も楽しみになる住環境です♪                                                             

 *・。*・。*・。*・。*・。


 ≪本日、ご見学可能です!≫
 ※今すぐ見たい!もちろん大歓迎♪


 
 ○お打合せ室から目の届く
   キッズスペース完備!
  ※スタッフ1名が付き添います。
 ●現地集合現地解散OKです!
 ○無料駐車場あり
 ●ご希望がございましたら
  送迎も可能です!


  好評分譲中につき、
 先着順になります。

  ご見学の際は、事前に所沢店まで
  お問い合わせください!
 【所沢店】0120-989-203



 株式会社ファイブイズホームは
 不動産販売 兼 建築請負会社です・。*・。*・。*・。*・。*・。*・。


 ≪本日、ご見学可能です!≫
 ※今すぐ見たい!もちろん大歓迎♪


 
 ○お打合せ室から目の届く
   キッズスペース完備!
  ※スタッフ1名が付き添います。
 ●現地集合現地解散OKです!
 ○無料駐車場あり
 ●ご希望がございましたら
  送迎も可能です!


  好評分譲中につき、
 先着順になります。

  ご見学の際は、事前に所沢店まで
  お問い合わせください!
 【所沢店】0120-989-203



 株式会社ファイブイズホームは
 不動産販売 兼 建築請負会社です。


“生活エンジョイ住宅”を理念に掲げ

 「家事」「収納」「子育て」
    を中心に設計

 皆様にお住まいをご提供しています。


 おかげ様で11のエリアで
 地域シェアNo.1の実績を
 獲得しました。



・。*・。*・。*・。*・。*・。*・。。


“生活エンジョイ住宅”を理念に掲げ

 「家事」「収納」「子育て」
    を中心に設計

 皆様にお住まいをご提供しています。


 おかげ様で11のエリアで
 地域シェアNo.1の実績を
 獲得しました。



・。*・。*・。*・。*・。*・。*・。
広告主 株式会社ファイブイズホーム
埼玉県行田市持田3丁目2-17
TEL:048-553-2272
宅地建物取引業免許:国土交通大臣(2)第8822号
加盟団体(公社)埼玉県宅地建物取引業協会
(一社)群馬県宅地建物取引業協会
(公社)栃木県宅地建物取引業協会
(公社)茨城県宅地建物取引業協会
(公社)首都圏不動産公正取引協議会
(一社)兵庫県宅地建物取引業協会

オープンハウス情報

開催
日時

2026年3月5日 ~ 2026年12月26日
毎週土日祝   10:00 ~ 19:00

・。*・。*・。*・。*・。*・。*・。


 ≪本日、ご見学可能です!≫
 ※今すぐ見たい!もちろん大歓迎♪


 
 ○お打合せ室から目の届く
   キッズスペース完備!
  ※スタッフ1名が付き添います。
 ●現地集合現地解散OKです!
 ○無料駐車場あり
 ●ご希望がございましたら
  送迎も可能です!


  好評分譲中につき、
 先着順になります。

  ご見学の際は、事前に所沢店まで
  お問い合わせください!
 【所沢店】0120-989-203



 株式会社ファイブイズホームは
 不動産販売 兼 建築請負会社です。


“生活エンジョイ住宅”を理念に掲げ

 「家事」「収納」「子育て」
    を中心に設計

 皆様にお住まいをご提供しています。


 おかげ様で11のエリアで
 地域シェアNo.1の実績を
 獲得しました。



・。*・。*・。*・。*・。*・。*・。

所要時間は約1分!簡単入力!

この物件にお問い合わせ(無料)

今スグ見学予約でプレゼントGET!今なら3,000円分のギフトカードプレゼント!

0/0
必須項目完了

確認画面へ
お進み下さい

0/0
必須項目完了

確認画面へ
お進み下さい

お問い合わせ内容

必須

氏名

必須

メールアドレス

必須

電話番号

必須

郵便番号

都道府県

必須

市町村番地

必須

ご見学希望日

必須

ご見学希望時間

必須

その他、ご要望などご自由にご記入ください

<個人情報の取り扱いについて>
利用規約及びプライバシーポリシーを必ずお読みいただき同意いただけた場合は、確認画面へお進みください。
<見学予約特典・ギフトカードプレゼントについて>
ご来店時に予約完了メールをスタッフまでご提示ください。
2回目のお打ち合わせ時に、ご指定のギフトカードをプレゼントいたします。
※当キャンペーンは、当社に初めてご来場いただくご家族様1回のみ有効。住宅の建築・購入をご検討の方に限ります。
※ご予約前に当社へお問い合わせ、来場、ご契約されていた場合、当キャンペーンの対象外となります。

未入力項目があります

  • 上記内容と現況が異なる場合には現況優先といたします。
  • 未完成建物の外観写真は類似する建物であり、実際のものとは異なります。
  • 完成予測図、イメージパースは図面を基に書き起こしたもので実際のものと若干異なる場合がございます。
  • 写真は一部CG加工を施している場合がございます。
  • 掲載写真内の家具調度品は価格に含まれません。
  • 設備及び仕様写真は参考イメージです。実際のものと異なる場合がございます。
  • 徒歩所要時間は1分=80mとして換算したもので、距離は地図上の換算によるものです。
  • 地図は物件付近を表すものであり、実際の物件所在地とは異なる場合がございます。
  • 建築条件付売地とは、土地売買契約締結後3ヶ月以内に売主、または代理と建築請負契約をしていただくことを条件に販売いたします。この期間内に建築請負契約が成立しなかった場合は、土地売買契約は白紙解約になり、受領した手付金等の土地代金は無利息にて全てお返しいたします。
  • 情報更新日から現在までの間に売却済となってしまった場合はご了承ください。

土地

富士見市大字上南畑B-7号地

1,880万円

月々の支払い 約4.8万円/月 1,880万円を金利1.000%で40年借入れした場合の試算。

支払いシミュレーション

借入金額
返済期間
金利
ボーナス時の増額(1回分)
頭金
毎月の返済額
  • ※元利均等方式 金利5.00%までです。
  • ※返済年数5~50年まで入力できます。
  • ※ボーナスは年2回で計算しています。1,000万円まで入力できます。
  • ※物件購入時、その他諸費用が発生する場合がございます。
  • 仲介手数料無料
  • 都市ガス
  • 本下水
  • 自由設計対応

■全15区画の大型分譲地! 
■11号地域の為、どなたでも建築が可能です!
■自由設計可能!お好きな間取りでマイホームを建てられます!
■フルオーダー、セミオーダー承っております
■間取り相談会開催中
■住宅ローンが不安な方!お気軽にご相談ください。

土地面積 164.45㎡(49.74坪)
小学校 富士見市立南畑小学校(約920m)
中学校 富士見市立東中学校(約920m)

通話無料 ファイブイズホーム 所沢店

0120-989-203

営業時間 10:00~19:00(火・水定休)

トップへ戻る