公式ホーム > 物件トップ > 土地 > 久喜市の土地一覧

久喜市 土地一覧

久喜市土地の購入情報 検索結果一覧

久喜市土地を買うなら、ファイブイズホームの土地検索にお任せください。現在、久喜市の土地販売情報を44件掲載中です。人気の分譲・建売住宅情報を検索できます。写真や間取りから、希望に合った土地情報がきっと見つかります。ファイブイズホームで自分にピッタリな久喜市の土地を見つけましょう。

久喜市土地44

  1. 1
  2. 2
  3. 次へ

人気の条件から絞り込む

表示順序
    • 【外観】
    • 【間取り】
    • 【区画図】
    • 土地
    ハートのアイコン 久喜市西【全28区画】28号地

    1,280万円

    月々の支払い
    3.1万円/月 クエスチョンマーク1,280万円を金利0.720%で40年借入れした場合の試算。
    土地面積
    147.47㎡(44.60坪)
    小学校
    青葉小学校(約640m)
    中学校
    久喜東中学校(約1,050m)
    • 小学校10分以内
    • 本下水
    • 自由設計対応

    \全28区画の大型分譲地・自由設計可能☆・。/

    ☆。POINT。☆
    ■青葉小学校まで徒歩8分で通学にも安心
    □毎日のお買い物に便利なドラッグストアセキまで徒歩3分
    ■セブンイレブンまで徒歩6分
    ■お好きなプランで建築可能!

    \間取りプラン・資金計画のご相談は無料で承ります♪/

    • 【外観】
    • 【間取り】
    • 【区画図】
    • 土地
    ハートのアイコン 久喜市西【全28区画】24号地

    1,380万円

    月々の支払い
    3.3万円/月 クエスチョンマーク1,380万円を金利0.720%で40年借入れした場合の試算。
    土地面積
    147.47㎡(44.60坪)
    小学校
    青葉小学校(約630m)
    中学校
    久喜東中学校(約1,040m)
    • 小学校10分以内
    • 本下水
    • 自由設計対応

    \全28区画の大型分譲地・自由設計可能☆・。/

    ☆。POINT。☆
    ■青葉小学校まで徒歩8分で通学にも安心
    □毎日のお買い物に便利なドラッグストアセキまで徒歩3分
    ■セブンイレブンまで徒歩6分
    ■お好きなプランで建築可能!

    ◇資料請求・見学予約などお気軽にお問い合わせください◇

    • 【外観】
    • 【間取り】
    • 【区画図】
    • 土地
    • 値下げ物件
    ハートのアイコン 久喜市菖蒲町菖蒲(全9区画)8号地
    100万円値下 旧価格25.2.3~新価格25.10.12~

    830万円730万円

    月々の支払い
    1.8万円/月 クエスチョンマーク730万円を金利0.720%で40年借入れした場合の試算。
    土地面積
    160.75㎡(48.62坪)
    小学校
    菖蒲小学校(約620m)
    中学校
    菖蒲中学校(約1,490m)
    • 小学校10分以内
    • スーパー近い
    • 自由設計対応

    \全9区画の開発分譲地/
    ●自由設計可能です!お好きな間取りで理想のマイホームを!
    ●モラージュ菖蒲まで徒歩15分!ドラッグストアセキまで徒歩1分!
    ●資料請求・見学予約などお気軽にお問い合わせください!

    • 【外観】
    • 【間取り】
    • 土地
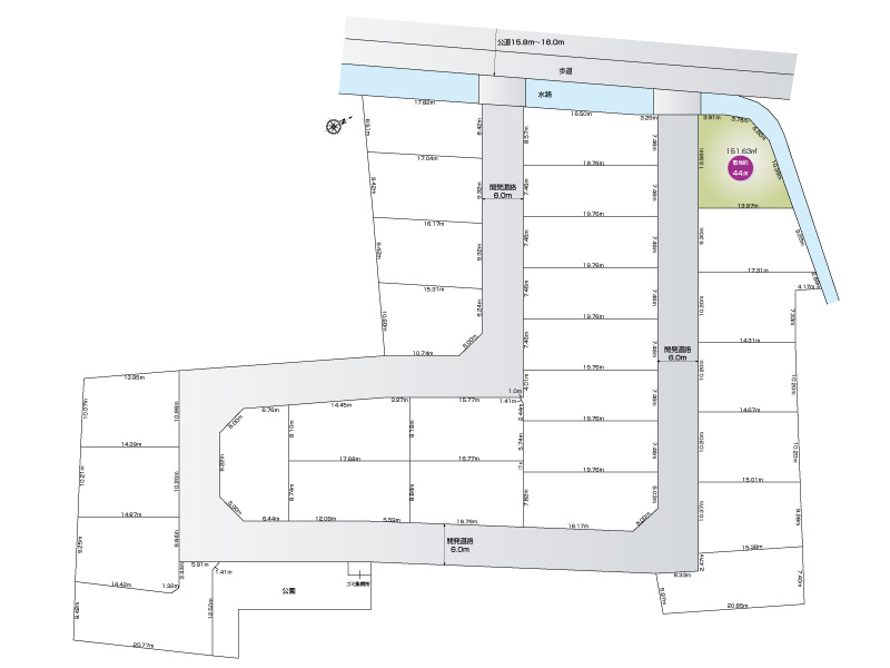
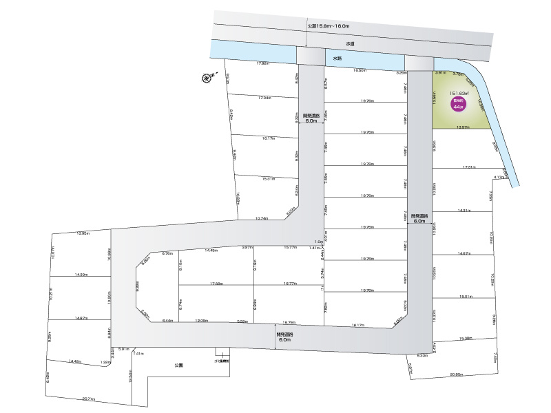
    ハートのアイコン 久喜市菖蒲町菖蒲(全9区画)5号地

    880万円

    月々の支払い
    2.1万円/月 クエスチョンマーク880万円を金利0.720%で40年借入れした場合の試算。
    土地面積
    151.63㎡(45.86坪)
    小学校
    菖蒲小学校(約630m)
    中学校
    菖蒲中学校(約1,500m)
    • 小学校10分以内
    • スーパー近い
    • 自由設計対応

    \ 全9区画の開発分譲地・自由設計可能☆・。/

    ☆。POINT。☆
    ■毎日のお買い物に便利なドラッグストアセキ徒歩1分!
    □徒歩圏内に学校・商業施設多数あり!
    ■お好きなプランで建築可能!

    周辺環境
    〇菖蒲小学校 徒歩8分 〇菖蒲中学校 徒歩19分
    〇業務スーパー 徒歩9分 〇セブンイレブン 徒歩9分
    〇コメリハード&グリーン 徒歩5分

    \間取りプラン・資金計画のご相談は無料で承ります♪/

    • 【外観】
    • 【間取り】
    • 土地
    • 仲介手数料無料
    ハートのアイコン 久喜市菖蒲町菖蒲(全9区画)7号地

    1,030万円

    月々の支払い
    2.5万円/月 クエスチョンマーク1,030万円を金利0.720%で40年借入れした場合の試算。
    土地面積
    151.75㎡(45.90坪)
    小学校
    菖蒲小学校(約620m)
    中学校
    菖蒲中学校(約1,490m)
    • 小学校10分以内
    • スーパー近い
    • 自由設計対応

    \全9区画の開発分譲地/
    ●自由設計可能です!お好きな間取りで理想のマイホームを!
    ●モラージュ菖蒲まで徒歩15分!ドラッグストアセキまで徒歩1分!
    ●資料請求・見学予約などお気軽にお問い合わせください!

    • 【外観】
    • 【間取り】
    • 【区画図】
    • 土地
    ハートのアイコン 久喜市菖蒲町菖蒲(全9区画)9号地

    1,080万円

    月々の支払い
    2.6万円/月 クエスチョンマーク1,080万円を金利0.720%で40年借入れした場合の試算。
    土地面積
    159.98㎡(48.39坪)
    小学校
    菖蒲小学校(約610m)
    中学校
    菖蒲中学校(約1,480m)
    • 小学校10分以内
    • スーパー近い
    • 自由設計対応

    \全9区画の開発分譲地/
    ●お客様のお好きな間取りでプランニング可能です♪
    ●モラージュ菖蒲まで徒歩15分!ドラッグストアセキまで徒歩1分!
    ●資料請求・見学予約などお気軽にお問い合わせください!

    • 【外観】
    • 【間取り】
    • 【区画図】
    • 土地
    • 値下げ物件
    ハートのアイコン 久喜市西【全28区画】12号地
    100万円値下 旧価格25.3.9~新価格25.10.6~

    1,280万円1,180万円

    月々の支払い
    2.8万円/月 クエスチョンマーク1,180万円を金利0.720%で40年借入れした場合の試算。
    土地面積
    153.21㎡(46.34坪)
    小学校
    青葉小学校(約720m)
    中学校
    久喜東中学校(約1,130m)
    • 小学校10分以内
    • 本下水
    • 自由設計対応

    \【NEW】注文住宅建築可能!土地46坪以上/
    10/6価格改定しました!
    ☆。POINT。☆
    ■DAISOまで徒歩7分
    □コメダ珈琲店まで徒歩14分
    □青葉小学校まで徒歩9分
    ■ドラッグストアセキまで徒歩4分
    □セブンイレブンまで徒歩7分
    ■マルエツまで徒歩13分
    □接道6m
    ■お好きなプランで建築可能!

    ◇資料請求・見学予約などお気軽にお問い合わせください◇

    • 【外観】
    • 【間取り】
    • 土地
    • 値下げ物件
    • 仲介手数料無料
    ハートのアイコン 久喜市西【全28区画】27号地
    100万円値下 旧価格25.3.16~新価格25.10.6~

    1,330万円1,230万円

    月々の支払い
    2.9万円/月 クエスチョンマーク1,230万円を金利0.720%で40年借入れした場合の試算。
    土地面積
    147.97㎡(44.76坪)
    小学校
    青葉小学校(約640m)
    中学校
    久喜東中学校(約1,050m)
    • 小学校10分以内
    • 本下水
    • 自由設計対応

    \全28区画の大型分譲地・自由設計可能☆・。/
    10/6価格改定しました!
    ☆。POINT。☆
    ■青葉小学校まで徒歩8分で通学にも安心
    □毎日のお買い物に便利なドラッグストアセキまで徒歩3分
    ■セブンイレブンまで徒歩6分
    ■お好きなプランで建築可能!

    \間取りプラン・資金計画のご相談は無料で承ります♪/

    • 【外観】
    • 【間取り】
    • 【区画図】
    • 土地
    ハートのアイコン 久喜市西【全28区画】13号地

    1,380万円

    月々の支払い
    3.3万円/月 クエスチョンマーク1,380万円を金利0.720%で40年借入れした場合の試算。
    土地面積
    149.30㎡(45.16坪)
    小学校
    青葉小学校(約720m)
    中学校
    久喜東中学校(約1,120m)
    • 小学校10分以内
    • 本下水
    • 自由設計対応

    \【NEW】注文住宅建築可能!土地45坪以上/

    ☆。POINT。☆

    □青葉小学校まで徒歩9分
    ■ドラッグストアセキまで徒歩4分
    □セブンイレブンまで徒歩7分
    ■マルエツまで徒歩13分
    ■DAISOまで徒歩7分
    □コメダ珈琲店まで徒歩14分
    □接道6m
    ■お好きなプランで建築可能!

    ◇資料請求・見学予約などお気軽にお問い合わせください◇

    • 【外観】
    • 【間取り】
    • 【区画図】
    • 土地
    ハートのアイコン 久喜市西【全28区画】19号地

    1,380万円

    月々の支払い
    3.3万円/月 クエスチョンマーク1,380万円を金利0.720%で40年借入れした場合の試算。
    土地面積
    146.43㎡(44.29坪)
    小学校
    青葉小学校(約650m)
    中学校
    久喜東中学校(約1,060m)
    • 小学校10分以内
    • 本下水
    • 自由設計対応

    \28区画の大型分譲地・自由設計可能☆・。/

    ☆。POINT。☆
    ■青葉小学校まで徒歩9分で通学にも安心
    □毎日のお買い物に便利なドラッグストアセキまで徒歩3分
    ■セブンイレブンまで徒歩6分
    ■お好きなプランで建築可能!

    ◇資料請求・見学予約などお気軽にお問い合わせください◇

    • 【外観】
    • 【間取り】
    • 【区画図】
    • 土地
    ハートのアイコン 久喜市西【全28区画】20号地

    1,380万円

    月々の支払い
    3.3万円/月 クエスチョンマーク1,380万円を金利0.720%で40年借入れした場合の試算。
    土地面積
    154.47㎡(46.72坪)
    小学校
    青葉小学校(約640m)
    中学校
    久喜東中学校(約1,050m)
    • 小学校10分以内
    • 本下水
    • 自由設計対応

    \全28区画の大型分譲地・自由設計可能☆・。/

    ☆。POINT。☆
    ■青葉小学校まで徒歩8分で通学にも安心
    □毎日のお買い物に便利なドラッグストアセキまで徒歩3分
    ■セブンイレブンまで徒歩6分
    ■お好きなプランで建築可能!

    ◇資料請求・見学予約などお気軽にお問い合わせください◇

    • 【外観】
    • 【間取り】
    • 土地
    ハートのアイコン 久喜市西【全28区画】21号地

    1,380万円

    月々の支払い
    3.3万円/月 クエスチョンマーク1,380万円を金利0.720%で40年借入れした場合の試算。
    土地面積
    146.44㎡(44.29坪)
    小学校
    青葉小学校(約630m)
    中学校
    久喜東中学校(約1,040m)
    • 小学校10分以内
    • 本下水
    • 自由設計対応

    \全28区画の大型分譲地・自由設計可能☆・。/

    ☆。POINT。☆
    ■青葉小学校まで徒歩8分で通学にも安心
    □毎日のお買い物に便利なドラッグストアセキまで徒歩3分
    ■セブンイレブンまで徒歩6分
    ■お好きなプランで建築可能!

    ◇資料請求・見学予約などお気軽にお問い合わせください◇

    • 【外観】
    • 【間取り】
    • 土地
    ハートのアイコン 久喜市西【全28区画】22号地

    1,380万円

    月々の支払い
    3.3万円/月 クエスチョンマーク1,380万円を金利0.720%で40年借入れした場合の試算。
    土地面積
    156.37㎡(47.30坪)
    小学校
    青葉小学校(約630m)
    中学校
    久喜東中学校(約1,040m)
    • 小学校10分以内
    • 本下水
    • 自由設計対応

    \全28区画の大型分譲地・自由設計可能☆・。/

    ☆。POINT。☆
    ■青葉小学校まで徒歩8分で通学にも安心
    □毎日のお買い物に便利なドラッグストアセキまで徒歩3分
    ■セブンイレブンまで徒歩6分
    ■お好きなプランで建築可能!

    ◇資料請求・見学予約などお気軽にお問い合わせください◇

    • 【外観】
    • 【間取り】
    • 【区画図】
    • 土地
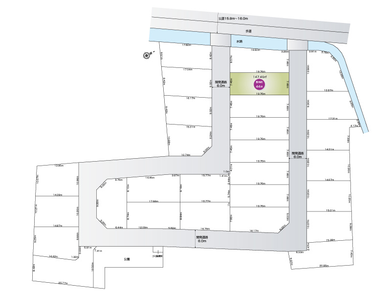
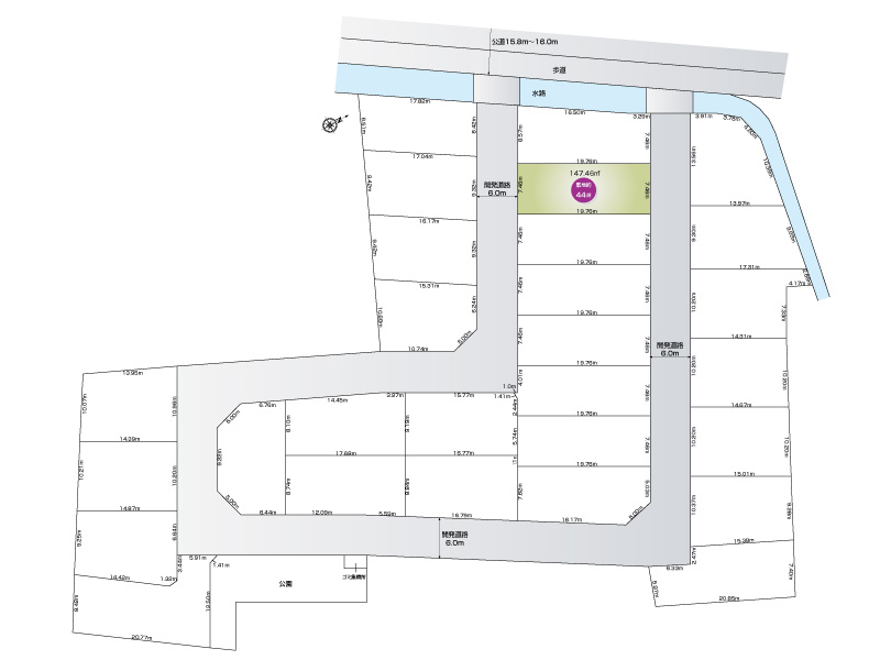
    ハートのアイコン 久喜市西【全28区画】23号地

    1,380万円

    月々の支払い
    3.3万円/月 クエスチョンマーク1,380万円を金利0.720%で40年借入れした場合の試算。
    土地面積
    147.46㎡(44.60坪)
    小学校
    青葉小学校(約630m)
    中学校
    久喜東中学校(約1,040m)
    • 小学校10分以内
    • 本下水
    • 自由設計対応

    \全28区画の大型分譲地・自由設計可能☆・。/

    ☆。POINT。☆
    ■青葉小学校まで徒歩8分で通学にも安心
    □毎日のお買い物に便利なドラッグストアセキまで徒歩3分
    ■セブンイレブンまで徒歩6分
    ■お好きなプランで建築可能!

    ◇資料請求・見学予約などお気軽にお問い合わせください◇

    • 【外観】
    • 【間取り】
    • 【区画図】
    • 土地
    • 仲介手数料無料
    ハートのアイコン 久喜市西【全28区画】25号地

    1,380万円

    月々の支払い
    3.3万円/月 クエスチョンマーク1,380万円を金利0.720%で40年借入れした場合の試算。
    土地面積
    147.47㎡(44.60坪)
    小学校
    青葉小学校(約650m)
    中学校
    久喜東中学校(約1,060m)
    • 小学校10分以内
    • 本下水
    • 自由設計対応

    \全28区画の大型分譲地・自由設計可能☆・。/

    ☆。POINT。☆
    ■青葉小学校まで徒歩9分で通学にも安心
    □毎日のお買い物に便利なドラッグストアセキまで徒歩3分
    ■セブンイレブンまで徒歩6分
    ■お好きなプランで建築可能!

    ◇資料請求・見学予約などお気軽にお問い合わせください◇

    • 【外観】
    • 【間取り】
    • 土地
    • 仲介手数料無料
    ハートのアイコン 久喜市西【全28区画】26号地

    1,380万円

    月々の支払い
    3.3万円/月 クエスチョンマーク1,380万円を金利0.720%で40年借入れした場合の試算。
    土地面積
    147.47㎡(44.60坪)
    小学校
    青葉小学校(約630m)
    中学校
    久喜東中学校(約1,040m)
    • 小学校10分以内
    • 本下水
    • 自由設計対応

    \全28区画の大型分譲地・自由設計可能☆・。/

    ☆。POINT。☆
    ■青葉小学校まで徒歩8分で通学にも安心
    □毎日のお買い物に便利なドラッグストアセキまで徒歩3分
    ■セブンイレブンまで徒歩6分
    ■お好きなプランで建築可能!

    ◇資料請求・見学予約などお気軽にお問い合わせください◇

    • 【外観】
    • 【間取り】
    • 【区画図】
    • 土地
    ハートのアイコン 久喜市上内(全4区画)3号地

    1,380万円

    月々の支払い
    3.3万円/月 クエスチョンマーク1,380万円を金利0.720%で40年借入れした場合の試算。
    土地面積
    360.10㎡(108.92坪)
    小学校
    砂原小学校(約350m)
    中学校
    鷲宮中学校(約870m)
    • 駅徒歩6分以内
    • 小学校10分以内
    • スーパー近い
    • 自由設計対応

    \全4区画の分譲地・フリープランやセミオーダー住宅でも建築可能/

    ☆彡おすすめポイント★/
    ■砂原小学校まで徒歩5分でご家族も安心
    □KASUMI(スーパー)まで徒歩4分
    ■東武伊勢崎線「鷲宮駅」まで徒歩6分
    □高橋医院目の前!
    ■駅近でこの土地の広さは魅力的!
    充実の周辺施設で憧れのマイホームを計画してみてはいかがでしょうか。

    ◇資料請求・見学予約などお気軽にお問い合わせください◇

    • 【外観】
    • 【間取り】
    • 【区画図】
    • 土地
    ハートのアイコン 久喜市西【全28区画】17号地

    1,430万円

    月々の支払い
    3.4万円/月 クエスチョンマーク1,430万円を金利0.720%で40年借入れした場合の試算。
    土地面積
    153.75㎡(46.50坪)
    小学校
    青葉小学校(約670m)
    中学校
    久喜東中学校(約1,080m)
    • 小学校10分以内
    • 本下水
    • 自由設計対応

    【自由設計可能】
    ■お好きな間取りでマイホームを建てられます
    ■セブンイレブン・ドラッグストアセキ・青葉小学校まで徒歩10分圏内♪

    +* point +*
    ◇生活環境が整っていて快適な分譲地
    ◆市街地で本下水エリア
    ◇フルオーダー・セミオーダー可能
    ◆住宅ローンが不安な方!お気軽にご相談ください。

    \間取りプラン・資金計画のご相談は無料で承ります♪/

    • 【外観】
    • 【間取り】
    • 【区画図】
    • 土地
    • 見学可
    ハートのアイコン 久喜市西【全28区画】9号地

    1,430万円

    月々の支払い
    3.4万円/月 クエスチョンマーク1,430万円を金利0.720%で40年借入れした場合の試算。
    土地面積
    154.24㎡(46.65坪)
    小学校
    青葉小学校(約700m)
    中学校
    久喜東中学校(約1,100m)
    • 小学校10分以内
    • 本下水
    • 自由設計対応

    \注文住宅建築可能!土地46坪以上/

    ☆。POINT。☆
    ■DAISOまで徒歩7分
    □コメダ珈琲店まで徒歩14分
    □青葉小学校まで徒歩9分
    ■ドラッグストアセキまで徒歩3分
    □セブンイレブンまで徒歩6分
    ■マルエツまで徒歩13分
    □接道6m
    ■お好きなプランで建築可能!

    ◇資料請求・見学予約などお気軽にお問い合わせください◇

    • 【外観】
    • 【間取り】
    • 【区画図】
    • 土地
    • 見学可
    ハートのアイコン 久喜市西【全28区画】10号地

    1,430万円

    月々の支払い
    3.4万円/月 クエスチョンマーク1,430万円を金利0.720%で40年借入れした場合の試算。
    土地面積
    153.75㎡(46.50坪)
    小学校
    青葉小学校(約710m)
    中学校
    久喜東中学校(約1,120m)
    • 小学校10分以内
    • 本下水
    • 自由設計対応

    \注文住宅建築可能!土地46坪以上/

    ☆。POINT。☆
    ■DAISOまで徒歩7分
    □コメダ珈琲店まで徒歩14分
    □青葉小学校まで徒歩9分
    ■ドラッグストアセキまで徒歩4分
    □セブンイレブンまで徒歩7分
    ■マルエツまで徒歩13分
    □接道6m
    ■お好きなプランで建築可能!

    ◇資料請求・見学予約などお気軽にお問い合わせください◇

    • 【外観】
    • 【間取り】
    • 【区画図】
    • 土地
    ハートのアイコン 久喜市西【全28区画】16号地

    1,430万円

    月々の支払い
    3.4万円/月 クエスチョンマーク1,430万円を金利0.720%で40年借入れした場合の試算。
    土地面積
    154.72㎡(46.80坪)
    小学校
    青葉小学校(約700m)
    中学校
    久喜東中学校(約1,110m)
    • 小学校10分以内
    • 本下水
    • 自由設計対応

    【自由設計可能】
    ■お好きな間取りでマイホームを建てられます
    ■セブンイレブン・ドラッグストアセキ・青葉小学校まで徒歩10分圏内♪

    +* point +*
    ◇生活環境が整っていて快適な分譲地
    ◆市街地で本下水エリア
    ◇フルオーダー・セミオーダー可能
    ◆住宅ローンが不安な方!お気軽にご相談ください。

    ◆◇資料請求・見学予約などお気軽にお問い合わせください◇◆

    • 【外観】
    • 【間取り】
    • 【区画図】
    • 土地
    ハートのアイコン 久喜市上内(全4区画)4号地

    1,430万円

    月々の支払い
    3.4万円/月 クエスチョンマーク1,430万円を金利0.720%で40年借入れした場合の試算。
    土地面積
    412.91㎡(124.90坪)
    小学校
    砂原小学校(約360m)
    中学校
    鷲宮中学校(約860m)
    • 駅徒歩6分以内
    • 小学校10分以内
    • スーパー近い
    • 自由設計対応

    \全4区画の分譲地・フリープランやセミオーダー住宅でも建築可能/

    ☆彡おすすめポイント★/
    ■砂原小学校まで徒歩5分でご家族も安心
    □KASUMI(スーパー)まで徒歩4分
    ■東武伊勢崎線「鷲宮駅」まで徒歩6分
    □高橋医院目の前!
    ■駅近でこの土地の広さは魅力的!
    充実の周辺施設で憧れのマイホームを計画してみてはいかがでしょうか。

    ◇資料請求・見学予約などお気軽にお問い合わせください◇

    • 【外観】
    • 【間取り】
    • 【区画図】
    • 土地
    ハートのアイコン 久喜市西【全28区画】1号地

    1,480万円

    月々の支払い
    3.5万円/月 クエスチョンマーク1,480万円を金利0.720%で40年借入れした場合の試算。
    土地面積
    151.63㎡(45.86坪)
    小学校
    青葉小学校(約640m)
    中学校
    久喜東中学校(約1,050m)
    • 小学校10分以内
    • 本下水
    • 自由設計対応

    \【NEW】自由な間取りや外観で建てられます!/

    ☆。POINT。☆
    ■青葉小学校まで徒歩8分で通学にも安心
    □毎日のお買い物に便利なドラッグストアセキまで徒歩3分
    ■セブンイレブンまで徒歩6分
    ■お好きなプランで建築可能!

    ◇資料請求・見学予約などお気軽にお問い合わせください◇

    • 【外観】
    • 【間取り】
    • 【区画図】
    • 土地
    • 見学可
    ハートのアイコン 久喜市西【全28区画】5号地

    1,480万円

    月々の支払い
    3.5万円/月 クエスチョンマーク1,480万円を金利0.720%で40年借入れした場合の試算。
    土地面積
    151.49㎡(45.82坪)
    小学校
    青葉小学校(約680m)
    中学校
    久喜東中学校(約1,090m)
    • 小学校10分以内
    • 本下水
    • 自由設計対応

    \【NEW】注文住宅建築可能!土地45坪以上/

    ☆。POINT。☆
    ■DAISOまで徒歩6分
    □コメダ珈琲店まで徒歩13分
    ■マルエツまで徒歩13分
    □接道6m
    ■お好きなプランで建築可能!

    ◇資料請求・見学予約などお気軽にお問い合わせください◇

    • 【外観】
    • 【間取り】
    • 【区画図】
    • 土地
    ハートのアイコン 久喜市上内(全4区画)2号地

    1,480万円

    月々の支払い
    3.5万円/月 クエスチョンマーク1,480万円を金利0.720%で40年借入れした場合の試算。
    土地面積
    338.77㎡(102.47坪)
    小学校
    砂原小学校(約350m)
    中学校
    鷲宮中学校(約870m)
    • 駅徒歩6分以内
    • 小学校10分以内
    • スーパー近い
    • 自由設計対応

    \全4区画の分譲地・フリープランやセミオーダー住宅でも建築可能/

    ☆彡おすすめポイント★/
    ■砂原小学校まで徒歩5分でご家族も安心
    □KASUMI(スーパー)まで徒歩4分
    ■東武伊勢崎線「鷲宮駅」まで徒歩6分
    □高橋医院目の前!
    ■駅近でこの土地の広さは魅力的!
    充実の周辺施設で憧れのマイホームを計画してみてはいかがでしょうか。

    ◇資料請求・見学予約などお気軽にお問い合わせください◇

    • 【外観】
    • 【間取り】
    • 【区画図】
    • 土地
    ハートのアイコン 久喜市西【全28区画】15号地

    1,580万円

    月々の支払い
    3.8万円/月 クエスチョンマーク1,580万円を金利0.720%で40年借入れした場合の試算。
    土地面積
    154.24㎡(46.65坪)
    小学校
    青葉小学校(約710m)
    中学校
    久喜東中学校(約1,120m)
    • 小学校10分以内
    • 本下水
    • 自由設計対応

    【自由設計可能】
    ■お好きな間取りでマイホームを建てられます
    ■セブンイレブン・ドラッグストアセキ・青葉小学校まで徒歩10分圏内♪

    +* point +*
    ◇生活環境が整っていて快適な分譲地
    ◆市街地で本下水エリア
    ◇フルオーダー・セミオーダー可能
    ◆住宅ローンが不安な方!お気軽にご相談ください。

    ◆◇資料請求・見学予約などお気軽にご利用ください◇◆
     

    • 【外観】
    • 【区画図】
    • 【間取り】
    • 土地
    ハートのアイコン 久喜市上内(全4区画)1号地

    1,580万円

    月々の支払い
    3.8万円/月 クエスチョンマーク1,580万円を金利0.720%で40年借入れした場合の試算。
    土地面積
    326.20㎡(98.67坪)
    小学校
    砂原小学校(約340m)
    中学校
    鷲宮中学校(約880m)
    • 駅徒歩5分以内
    • 小学校10分以内
    • スーパー近い
    • 自由設計対応

    \全4区画の分譲地・フリープランやセミオーダー住宅でも建築可能/

    ☆彡おすすめポイント★/
    ■砂原小学校まで徒歩5分でご家族も安心
    □KASUMI(スーパー)まで徒歩4分
    ■東武伊勢崎線「鷲宮駅」まで徒歩6分
    □高橋医院目の前!
    ■駅近でこの土地の広さは魅力的!
    充実の周辺施設で憧れのマイホームを計画してみてはいかがでしょうか。

    ◇資料請求・見学予約などお気軽にお問い合わせください◇

    • 【外観】
    • 【間取り】
    • 土地
    • 建築条件なし
    ハートのアイコン 久喜市高柳

    200万円

    月々の支払い
    0.5万円/月 クエスチョンマーク200万円を金利0.720%で40年借入れした場合の試算。
    土地面積
    132.29㎡(40.01坪)
    小学校
    久喜市立栗橋西小学校(約1,680m)
    中学校
    栗橋西中学校(約3,310m)

    「久喜市高柳」:久喜市エリアの新居にピッタリ。経済面での圧迫が相場より低く、その分心に余裕が生まれる200万円の土地です。納得の住まい選びをするなら、地元密着のファイブイズホームにお任せください。お客様の疑問や質問を一緒に解決いたします。まずはお気軽にお問い合わせください。

    • 【外観】
    • 【間取り】
    • 土地
    • 建築条件なし
    ハートのアイコン 久喜市菖蒲町菖蒲

    400万円

    月々の支払い
    1万円/月 クエスチョンマーク400万円を金利0.720%で40年借入れした場合の試算。
    土地面積
    121.38㎡(36.71坪)
    小学校
    菖蒲東小学校(約460m)
    中学校
    菖蒲中学校(約1,700m)
    • 南道路
    • 小学校10分以内
    • 本下水

    モラージュ菖蒲まで徒歩11分!
    近隣には商業施設が多くあり、暮らしやすい住環境です。
    菖蒲東小学校まで徒歩6分!菖蒲幼稚園まで徒歩6分!
    子育て世代にも嬉しいエリアです。

    • 【外観】
    • 【間取り】
    • 土地
    • 値下げ物件
    • 建築条件なし
    ハートのアイコン 久喜市栗橋東3丁目
    430万円値下 旧価格24.3.2~新価格25.6.14~

    980万円550万円

    月々の支払い
    1.3万円/月 クエスチョンマーク550万円を金利0.720%で40年借入れした場合の試算。
    土地面積
    202.53㎡(61.26坪)
    小学校
    栗橋小学校(約360m)
    中学校
    栗橋東中学校(約1,050m)
    • 駅徒歩14分以内
    • 小学校10分以内
    • 本下水

    ◎JR東北本線・東武日光線「栗橋」駅まで徒歩14分!
    ◎建築条件なし61坪の土地
    ◎栗橋小まで徒歩5分、栗橋東中まで徒歩14分
    近隣にはスーパー・コンビニ・ドラッグストアなどがあり、生活便利な立地です。

トップへ戻る