公式ホーム > 物件トップ > 新築一戸建て > 前橋市の新築一戸建て一覧

前橋市 戸建一覧

前橋市新築一戸建ての購入情報 検索結果一覧

前橋市新築一戸建てを買うなら、ファイブイズホームの新築一戸建て検索にお任せください。現在、前橋市の新築一戸建て販売情報を18件掲載中です。人気の分譲・建売住宅情報を検索できます。写真や間取りから、希望に合った新築一戸建て情報がきっと見つかります。ファイブイズホームで自分にピッタリな前橋市の新築一戸建てを見つけましょう。

前橋市新築一戸建て18

人気の条件から絞り込む

表示順序
    • 【外観パース】
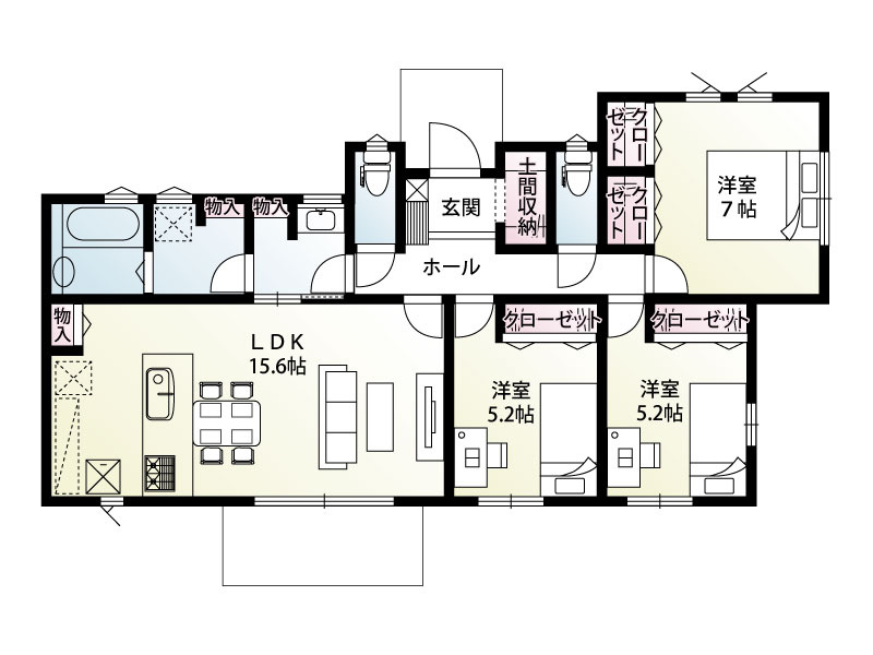
    • 【間取り】
    • 【区画図】
    • 新築一戸建て
    • 値下げ物件
    • 3LDK
    ハートのアイコン 前橋市青柳町12号棟
    182万円値下 旧価格25.11.4~新価格26.1.9~

    2,680万円2,498万円

    月々の支払い
    6万円/月 クエスチョンマーク2,498万円を金利0.720%で40年借入れした場合の試算。
    土地面積
    234.48㎡(70.93坪)
    建物面積
    82.81㎡(25.05坪)
    小学校
    桃川小学校(約2,660m)
    中学校
    前橋市立南橘中学校(約1,630m)
    • スーパー近い
    • 本下水
    • 制震構造
    • 地盤調査済
    • 宅配ボックス
    • 駐車場2台
    • 全居室収納
    • 土間収納
    • 対面キッチン

    ♪・☆NEW価格☆・♪

    *POINT*
    ◇洗面室・脱衣室分離型の間取り
    ◆フルフラットキッチンで食洗機付き
    ◇土間収納
    ◆トイレ2ヶ所
    ◇Kダンパー採用!耐震×制震住宅

    • 【外観】
    • 【間取り】
    • 【区画図】
    • 新築一戸建て
    • 値下げ物件
    • 4LDK+1S(納戸)
    • 即入居可
    ハートのアイコン 前橋市下細井町「1区画」
    100万円値下 旧価格25.9.11~新価格25.11.21~

    2,698万円2,598万円

    月々の支払い
    6.2万円/月 クエスチョンマーク2,598万円を金利0.720%で40年借入れした場合の試算。
    土地面積
    165.29㎡(50坪)
    建物面積
    110.54㎡(33.43坪)
    小学校
    細井小学校(約1,320m)
    中学校
    鎌倉中学校(約1,390m)
    • 本下水
    • 制震構造
    • 地盤調査済
    • 宅配ボックス
    • 駐車場3台
    • WIC
    • 土間収納
    • 和室
    • 対面キッチン

    ☆価格改定☆
    建物完成しました!いつでも内覧可能です☆

    ~洗面室、脱衣室分離型の間取り~

    *POINT*
    □フラットキッチンで食洗機付き
    ■土間収納・納戸完備
    □水廻動線に優れた間取り
    ■Kダンパー採用!耐震×制震住宅

    • 【外観パース】
    • 【間取り】
    • 【区画図】
    • 新築一戸建て
    • 値下げ物件
    • 4LDK
    ハートのアイコン 前橋市総社町総社4期「全3区画」2号棟
    182万円値下 旧価格25.10.20~新価格25.12.22~

    2,880万円2,698万円

    月々の支払い
    6.5万円/月 クエスチョンマーク2,698万円を金利0.720%で40年借入れした場合の試算。
    土地面積
    231.78㎡(70.11坪)
    建物面積
    106.40㎡(32.18坪)
    小学校
    勝山小学校(約480m)
    中学校
    第六中学校(約920m)
    • 駅徒歩17分以内
    • 小学校10分以内
    • 本下水
    • 制震構造
    • 地盤調査済
    • 宅配ボックス
    • 駐車場3台
    • 全室南向き
    • WIC
    • 全居室収納
    • 土間収納
    • 対面キッチン

    ♪・☆NEW価格☆・♪建売住宅

    勝山小学校まで徒歩6分♬

    *POINT*
    ◇全居室南向き
    ◆フルフラットキッチンで食洗機付き
    ◇土間収納
    ◆駐車スペース3台可能
    ◇Kダンパー採用!耐震×制震住宅

    • 【外観パース】
    • 【間取り】
    • 【区画図】
    • 新築一戸建て
    • 値下げ物件
    • 4LDK+1S(納戸)
    ハートのアイコン 前橋市総社町総社4期「全3区画」3号棟
    182万円値下 旧価格25.10.21~新価格25.12.22~

    2,880万円2,698万円

    月々の支払い
    6.5万円/月 クエスチョンマーク2,698万円を金利0.720%で40年借入れした場合の試算。
    土地面積
    231.37㎡(69.98坪)
    建物面積
    107.39㎡(32.48坪)
    小学校
    勝山小学校(約480m)
    中学校
    第六中学校(約920m)
    • 駅徒歩17分以内
    • 小学校10分以内
    • 本下水
    • 制震構造
    • 地盤調査済
    • 宅配ボックス
    • 駐車場3台
    • 全室南向き
    • WIC
    • 全居室収納
    • 土間収納
    • 和室
    • 対面キッチン

    ♪・☆NEW価格☆・♪建売住宅

    勝山小学校まで徒歩6分♬

    *POINT*
    ◇全居室南向き
    ◆フルフラットキッチンで食洗機付き
    ◇土間収納
    ◆納戸
    ◇駐車スペース3台可能
    ◆Kダンパー採用!耐震×制震住宅

    • 【外観パース】
    • 【間取り】
    • 【区画図】
    • 新築一戸建て
    • 値下げ物件
    • 4LDK
    ハートのアイコン 前橋市青柳町13号棟
    82万円値下 旧価格25.11.4~新価格26.1.9~

    2,780万円2,698万円

    月々の支払い
    6.5万円/月 クエスチョンマーク2,698万円を金利0.720%で40年借入れした場合の試算。
    土地面積
    207.97㎡(62.91坪)
    建物面積
    110.95㎡(33.56坪)
    小学校
    桃川小学校(約2,660m)
    中学校
    前橋市立南橘中学校(約1,630m)
    • スーパー近い
    • 本下水
    • 制震構造
    • 地盤調査済
    • 宅配ボックス
    • 駐車場3台
    • 全室南向き
    • WIC
    • 全居室収納
    • 土間収納
    • 和室
    • 対面キッチン

    ♪・☆NEW価格☆・♪

    *POINT*
    ◇全居室南向きの明るいお部屋
    ◆フルフラットキッチンで食洗機付き
    ◇土間収納
    ◆トイレ2ヶ所
    ◇Kダンパー採用!耐震×制震住宅

    • 【外観パース】
    • 【間取り】
    • 【区画図】
    • 新築一戸建て
    • 値下げ物件
    • 4LDK
    ハートのアイコン 前橋市青柳町14号棟
    82万円値下 旧価格25.11.7~新価格26.1.9~

    2,780万円2,698万円

    月々の支払い
    6.5万円/月 クエスチョンマーク2,698万円を金利0.720%で40年借入れした場合の試算。
    土地面積
    207.95㎡(62.9坪)
    建物面積
    113.44㎡(34.31坪)
    小学校
    桃川小学校(約2,660m)
    中学校
    前橋市立南橘中学校(約1,630m)
    • スーパー近い
    • 本下水
    • 制震構造
    • 地盤調査済
    • 宅配ボックス
    • 駐車場4台
    • WIC
    • 全居室収納
    • 土間収納
    • 和室
    • 対面キッチン

    ♪・☆NEW価格☆・♪
    水廻り同線に優れた間取り

    *POINT*
    ◇19.6帖の広々LDK
    ◆フルフラットキッチンで食洗機付き
    ◇土間収納
    ◆トイレ2ヶ所
    ◇Kダンパー採用!耐震×制震住宅

    • 【外観】
    • 【間取り】
    • 【区画図】
    • 新築一戸建て
    • 値下げ物件
    • 4LDK
    • 即入居可
    ハートのアイコン 前橋市上小出町2丁目「全2区画」1号棟
    100万円値下 旧価格25.11.15~新価格26.1.17~

    2,898万円2,798万円

    月々の支払い
    6.7万円/月 クエスチョンマーク2,798万円を金利0.720%で40年借入れした場合の試算。
    土地面積
    208.21㎡(62.98坪)
    建物面積
    110.12㎡(33.31坪)
    小学校
    荒牧小学校(約1,820m)
    中学校
    前橋市立南橘中学校(約1,150m)
    • 都市ガス
    • 本下水
    • 制震構造
    • 地盤調査済
    • 宅配ボックス
    • 駐車場4台
    • WIC
    • 全居室収納
    • 土間収納
    • 和室
    • 対面キッチン

    \\NEW価格//建物完成!いつでも内覧可能です☆
    都市ガス・本下水エリア

    *POINT*
    ◇水回り同線に優れた間取り
    ◇土間収納付き
    ◇全洋室クローゼット付き
    ◇Kダンパー採用!耐震×制震住宅!

    • 【外観】
    • 【間取り】
    • 【区画図】
    • 新築一戸建て
    • 値下げ物件
    • 3LDK+1S(納戸)
    • 即入居可
    ハートのアイコン 前橋市下細井町「全2区画」1号棟
    100万円値下 旧価格25.11.10~新価格26.1.10~

    2,898万円2,798万円

    月々の支払い
    6.7万円/月 クエスチョンマーク2,798万円を金利0.720%で40年借入れした場合の試算。
    土地面積
    264.46㎡(79.99坪)
    建物面積
    93.57㎡(28.3坪)
    小学校
    細井小学校(約950m)
    中学校
    鎌倉中学校(約1,100m)
    • 本下水
    • 制震構造
    • 地盤調査済
    • 宅配ボックス
    • 駐車場4台
    • 全居室収納
    • 土間収納
    • 対面キッチン

    【NEW平屋】3LDK+1S
    ☆価格改定しました☆

    ~POINT~
    ◎土間収納+納戸+クローゼット収納豊富
    ◎トイレ2か所付き!
    ◎広々LDK19.6帖
    ◎小中学校徒歩15分圏内
    ◎コンビニ・病院・公園徒歩15分圏内
    ◎Kダンパー採用!耐震×制震住宅!

    • 【外観】
    • 【間取り】
    • 新築一戸建て
    • 値下げ物件
    • 4LDK+1S(納戸)
    • 即入居可
    ハートのアイコン 前橋市総社町総社3期「全3区画」3号棟
    100万円値下 旧価格25.9.22~新価格25.11.22~

    3,098万円2,998万円

    月々の支払い
    7.2万円/月 クエスチョンマーク2,998万円を金利0.720%で40年借入れした場合の試算。
    土地面積
    203.90㎡(61.67坪)
    建物面積
    113.44㎡(34.31坪)
    小学校
    総社小学校(約550m)
    中学校
    第六中学校(約950m)
    • 駅徒歩19分以内
    • 小学校10分以内
    • 本下水
    • 制震構造
    • 地盤調査済
    • 宅配ボックス
    • 駐車場4台
    • 全室南向き
    • WIC
    • 全居室収納
    • 土間収納

    \\NEW//価格改定しました☆
    小中学校徒歩15分圏内
    コンビニ・病院・公園徒歩10分圏内

    *POINT*
    ◆全洋室南向きの明るいお部屋
    ◇フラットキッチンで食洗機付き
    ◆パントリー・土間収納・WIC付き
    ◇洗面室と脱衣室分離型の間取り
    ◆Kダンパー採用!耐震×制震住宅!

    • 【外観パース】
    • 【間取り】
    • 【区画図】
    • 新築一戸建て
    • 値下げ物件
    • 4LDK+1S(納戸)
    ハートのアイコン 前橋市元総社町「全4区画」4号棟
    182万円値下 旧価格25.11.5~新価格26.1.9~

    3,180万円2,998万円

    月々の支払い
    7.2万円/月 クエスチョンマーク2,998万円を金利0.720%で40年借入れした場合の試算。
    土地面積
    315.35㎡(95.39坪)
    建物面積
    107.39㎡(32.48坪)
    小学校
    元総社北小学校(約1,320m)
    中学校
    元総社中学校(約1,440m)
    • 都市ガス
    • 本下水
    • 制震構造
    • 地盤調査済
    • 宅配ボックス
    • 駐車場4台
    • 全室南向き
    • WIC
    • 全居室収納
    • 土間収納
    • 和室
    • 対面キッチン

    【NEW価格】新規建売住宅☆
    土間収納・納戸と収納豊富な間取り!

    *POINT*
    ◎家計に優しい都市ガス・本下水エリア
    ◎フラットキッチンで食洗機付き
    ◎全居室南向き☀
    ◎LDK16.6帖+続き間和室6帖
    ◎Kダンパー採用!耐震×制震住宅

    • 【外観パース】
    • 【間取り】
    • 【区画図】
    • 新築一戸建て
    • 値下げ物件
    • 4LDK+1S(納戸)
    ハートのアイコン 前橋市元総社町「全4区画」3号棟
    82万円値下 旧価格25.11.7~新価格26.1.9~

    3,280万円3,198万円

    月々の支払い
    7.7万円/月 クエスチョンマーク3,198万円を金利0.720%で40年借入れした場合の試算。
    土地面積
    309.52㎡(93.62坪)
    建物面積
    108.47㎡(32.81坪)
    小学校
    元総社北小学校(約1,320m)
    中学校
    元総社中学校(約1,440m)
    • 都市ガス
    • 本下水
    • 制震構造
    • 地盤調査済
    • 宅配ボックス
    • 駐車場4台
    • WIC
    • 全居室収納
    • 土間収納
    • 和室
    • 対面キッチン

    【NEW価格】新規建売住宅☆
    家計に優しい都市ガス・本下水エリア

    *POINT*
    ◎フラットキッチンで食洗機付き
    ◎土間収納
    ◎各洋室ウォークインクローゼット完備!
    ◎納戸
    ◎室内物干し金物
    ◎Kダンパー採用!耐震×制震住宅

    • 【外観】
    • 【間取り】
    • 【区画図】
    • 新築一戸建て
    • 値下げ物件
    • 3LDK
    • 即入居可
    ハートのアイコン 前橋市箱田町「1区画」
    100万円値下 旧価格25.11.14~新価格26.1.17~

    3,498万円3,398万円

    月々の支払い
    8.1万円/月 クエスチョンマーク3,398万円を金利0.720%で40年借入れした場合の試算。
    土地面積
    330.40㎡(99.94坪)
    建物面積
    92.74㎡(28.05坪)
    小学校
    前橋市立 東小学校(約590m)
    中学校
    前橋市立 東中学校(約370m)
    • 駅徒歩20分以内
    • 小学校10分以内
    • スーパー近い
    • 本下水
    • 制震構造
    • 地盤調査済
    • 宅配ボックス
    • 駐車場4台
    • WIC
    • 土間収納
    • 対面キッチン

    【NEW価格】平屋建売住宅♪
    《敷地面積99.94坪》

    *POINT*
    ■広々LDK18.0帖
    □ランドリーコーナー完備
    ■土間収納・WIC完備
    □トイレ2カ所
    ■耐震×制震住宅 Kダンパー搭載!

    • 【外観パース】
    • 【間取り】
    • 【区画図】
    • 新築一戸建て
    • 値下げ物件
    • 4LDK+1S(納戸)
    ハートのアイコン 前橋市荒牧町2丁目「全2区画」2号棟
    82万円値下 旧価格25.9.12~新価格25.11.22~

    3,480万円3,398万円

    月々の支払い
    8.1万円/月 クエスチョンマーク3,398万円を金利0.720%で40年借入れした場合の試算。
    土地面積
    207.38㎡(62.73坪)
    建物面積
    110.54㎡(33.43坪)
    小学校
    前橋市立荒牧小学校(約940m)
    中学校
    前橋市立南橘中学校(約670m)
    • スーパー近い
    • 都市ガス
    • 本下水
    • 制震構造
    • 地盤調査済
    • 宅配ボックス
    • 駐車場3台
    • WIC
    • 全居室収納
    • 土間収納
    • 和室
    • 対面キッチン

    \【NEW】価格改定/
    ☆洗面室、脱衣室分離型の間取り☆

    ~POINT~
    ◎水廻り動線に優れた間取り
    ◎都市ガス・本下水
    ◎土間収納・納戸完備
    ◎フラットキッチンで食洗機付き
    ◎スーパー・コンビニ徒歩圏内
    ◎Kダンパー採用!耐震×制震住宅

    • 【外観パース】
    • 【間取り】
    • 【区画図】
    • 新築一戸建て
    • 4LDK+1S(納戸)
    • キャンペーン対象
    ハートのアイコン 前橋市富士見町横室「全4区画」2号棟

    2,380万円

    月々の支払い
    5.7万円/月 クエスチョンマーク2,380万円を金利0.720%で40年借入れした場合の試算。
    土地面積
    182.11㎡(55.08坪)
    建物面積
    110.95㎡(33.56坪)
    小学校
    原小学校(約580m)
    中学校
    富士見中学校(約2,170m)
    • 小学校10分以内
    • 本下水
    • 制震構造
    • 地盤調査済
    • 宅配ボックス
    • 駐車場3台
    • WIC
    • 土間収納
    • 和室
    • 対面キッチン

    【NEW】☆新規建売住宅4LDK+S☆
    \土間収納もついた収納豊富な間取り/

    ◆水廻り動線に優れた間取り
    ◇フルフラットキッチンで食洗機付き
    ◆ゆとりある17帖のLDK+4.5帖の和室付き
    ◇原小まで徒歩8分
    ◇Kダンパー採用!耐震×制震住宅!

    • 【外観パース】
    • 【間取り】
    • 【区画図】
    • 新築一戸建て
    • 4LDK+1S(納戸)
    • キャンペーン対象
    ハートのアイコン 前橋市富士見町横室「全4区画」1号棟

    2,480万円

    月々の支払い
    5.9万円/月 クエスチョンマーク2,480万円を金利0.720%で40年借入れした場合の試算。
    土地面積
    197.83㎡(59.84坪)
    建物面積
    109.80㎡(33.21坪)
    小学校
    原小学校(約580m)
    中学校
    富士見中学校(約2,170m)
    • 小学校10分以内
    • 本下水
    • 制震構造
    • 地盤調査済
    • 宅配ボックス
    • 駐車場3台
    • 家事ラク動線
    • WIC
    • 全居室収納
    • 和室
    • 対面キッチン

    【NEW】☆新規建売住宅4LDK+S☆
    \広々3帖の納戸付き/

    ◆水廻り動線に優れた間取り
    ◇フルフラットキッチンで食洗機付き
    ◆4.5帖の便利な続き間和室
    ◇原小まで徒歩8分
    ◆Kダンパー採用!耐震×制震住宅!

    • 【外観パース】
    • 【間取り】
    • 【区画図】
    • 新築一戸建て
    • 3LDK
    • キャンペーン対象
    ハートのアイコン 前橋市下細井町「全2区画」2号棟

    2,980万円

    月々の支払い
    7.1万円/月 クエスチョンマーク2,980万円を金利0.720%で40年借入れした場合の試算。
    土地面積
    201.11㎡(60.83坪)
    建物面積
    94.40㎡(28.55坪)
    小学校
    細井小学校(約950m)
    中学校
    鎌倉中学校(約1,100m)
    • 南道路
    • 本下水
    • 制震構造
    • 地盤調査済
    • 宅配ボックス
    • 駐車場3台
    • 全居室収納
    • 土間収納
    • 対面キッチン

    【NEW平屋】3LDK+ユーティリティスペース付き♪

    ~POINT~
    ◎洗面室、脱衣室分離型の間取り
    ◎土間収納+パントリー+物入など収納充実
    ◎トイレ2か所付き!
    ◎小中学校徒歩15分圏内
    ◎コンビニ・病院・公園徒歩15分圏内
    ◎Kダンパー採用!耐震×制震住宅!

    • 【外観パース】
    • 【間取り】
    • 【区画図】
    • 新築一戸建て
    • 3LDK+1S(納戸)
    ハートのアイコン 前橋市元総社町「全4区画」2号棟

    3,380万円

    月々の支払い
    8.1万円/月 クエスチョンマーク3,380万円を金利0.720%で40年借入れした場合の試算。
    土地面積
    248.39㎡(75.13坪)
    建物面積
    93.57㎡(28.3坪)
    小学校
    元総社北小学校(約1,320m)
    中学校
    元総社中学校(約1,440m)
    • 都市ガス
    • 本下水
    • 制震構造
    • 地盤調査済
    • 宅配ボックス
    • 駐車場4台
    • WIC
    • 全居室収納
    • 対面キッチン

    【NEW】平屋3LDK新規建売住宅☆
    洗面室、脱衣室分離型の間取り!

    *POINT*
    ◎フラットキッチンで食洗機付き
    ◎2.0帖納戸付き
    ◎2カ所に室内物干し金物付き
    ◎主寝室8帖
    ◎Kダンパー採用!耐震×制震住宅

    • 【外観パース】
    • 【間取り】
    • 【区画図】
    • 新築一戸建て
    • 4LDK+1S(納戸)
    • キャンペーン対象
    ハートのアイコン 前橋市上小出町2丁目「全2区画」2号棟

    3,480万円

    月々の支払い
    8.3万円/月 クエスチョンマーク3,480万円を金利0.720%で40年借入れした場合の試算。
    土地面積
    166.68㎡(50.42坪)
    建物面積
    110.24㎡(33.34坪)
    小学校
    荒牧小学校(約1,820m)
    中学校
    前橋市立南橘中学校(約1,150m)
    • 南道路
    • 都市ガス
    • 本下水
    • 制震構造
    • 地盤調査済
    • 宅配ボックス
    • 駐車場3台
    • WIC
    • 全居室収納
    • 土間収納
    • 和室
    • 対面キッチン

    \\NEW//☆4LDK+納戸☆
    都市ガス・本下水エリア

    *POINT*
    ◇お洒落なリビング階段
    ◇土間収納・パントリー・納戸付き!
    ◇ゆとりある18.8帖のLDK
    ◇2階ホールに手洗い場付き!
    ◇Kダンパー採用!耐震×制震住宅

トップへ戻る